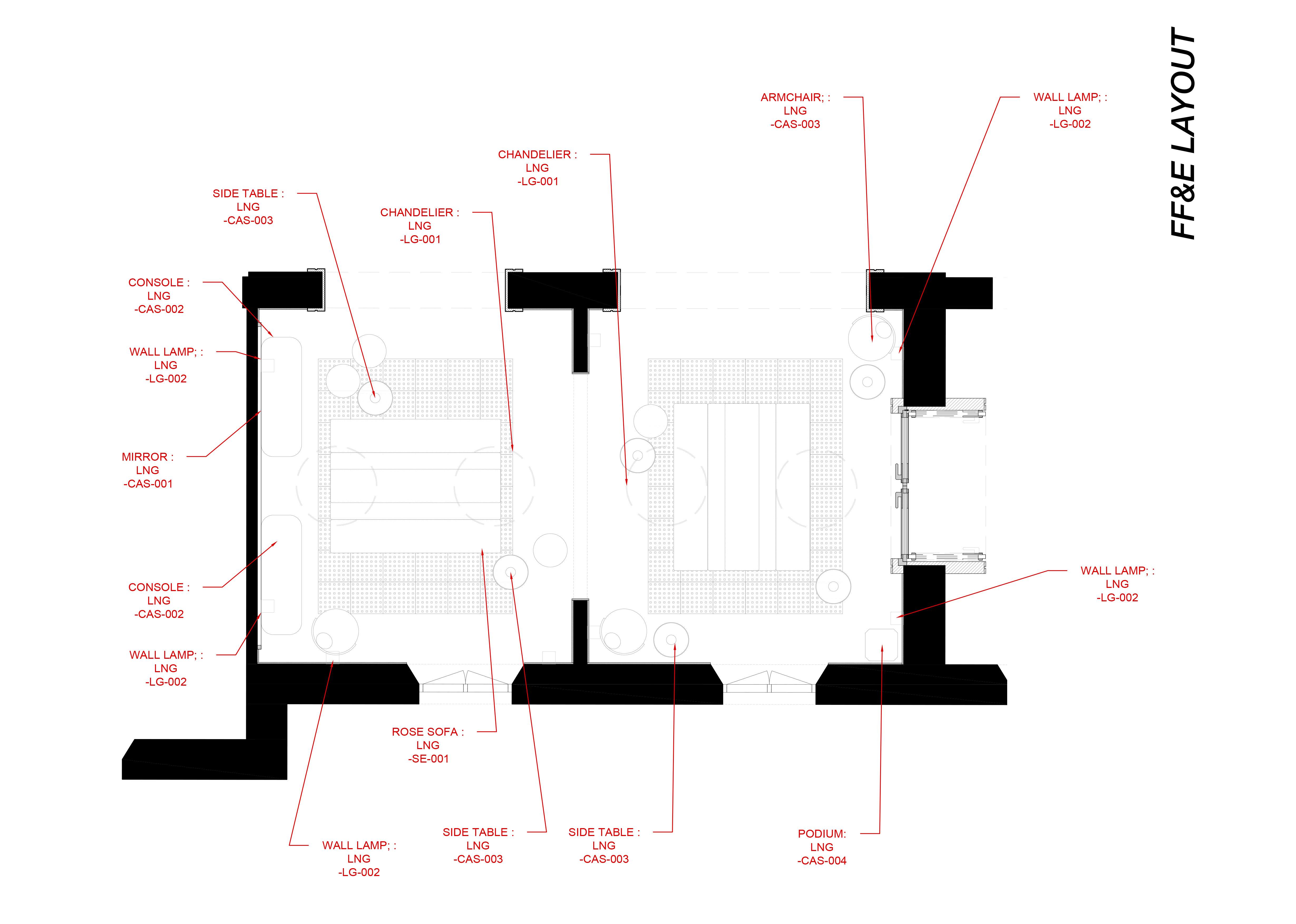
Technical design and drafting for a multi-floor hotel interior project located in Santa Margherita Ligure. I produced the full set of execution drawings, including floor plans, reflected ceiling plans, and detailed documentation for bespoke, made-to-measure furniture. The work focused on precision, coordination across levels, and delivering clear, build-ready files to support fabrication and installation.
the challenge
Deliver a complete technical drawing package for a multi-floor hotel fit-out on a tight timeline, ensuring coordination across levels and custom-made elements for fabrication and installation.
2023
year
Hotel Interior Design
INDUSTRY
Technical Drafting / Execution documentation
SCOPE OF WORK
Multi-floor hotel project in Santa Margherita Ligure (Portofino), Italy (2023) — focused on precision, feasibility, and clear documentation to support smooth fabrication and onsite implementation.